- Ti trovi in:
- Home ›
- Immobili ›
- Savona ›
- Vendita ›
- Appartamento ›
- Appartamento in vendita a Savona
Appartamento in vendita a Savona Savona
Zona: Centro
Descrizione
Cod. F16-1540
ULTIMO PIANO CON ASCENSORE
4 LOCALI
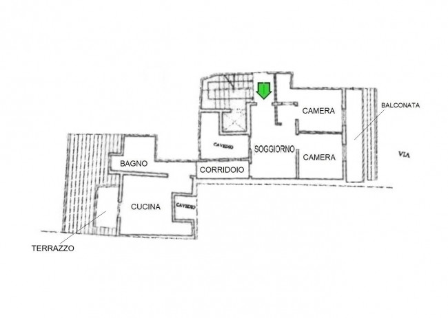
Giannetto Immobiliare propone, ultimo piano con ascensore completamente ristrutturato ingresso a disimpegno con soggiorno a vista e caminetto a legna, ampia cucina abitabile con terrazzino vivibile a tasca, camera matrimoniale e camera / studio con balconata comune, bagno finestrato con vasca
Termoautonomo a metano con caldaia a condensazione
PLANIMETRIA NELL'ULTIMA DELLE FOTO
NEL COMPLESSO DEL CRESCENT POSSIBILITA' DI ACQUISTO DI UN BOX A PARTE DA RENDERE PERTINENZIALE
Contattateci senza impegno per avere maggiori informazioni o per fissare una visita dell'immobile
019.84.29.869 - 349.67.43.593
€ 179.000
Caratteristiche
Scopri le caratteristiche di questo immobile
Codice: F16-1540
Contratto: Vendita
Categoria: Appartamento
CAP: 17100
Comune: Savona
Zona: Centro
Totale mq: 79 mq
Camere: 2
Bagni: 1
Locali: 4
Stato conservazione: Ottimo
Piano: 5
Piani totali: 5
Riscaldamento: Autonomo
Ascensore: Si
Infissi: LEGNO VETRO CAMERA
Anno di costruzione: 1930
Stato attuale: Libero al rogito
Spese condominio: € 75
Balconi: Presente
Terrazzo: Presente
Cucina: Abitabile
Arredato: Parzialmente arredato
Antenna Tv: Autonoma
Copertura ADSL
Copertura Fastweb
Camino
Impianto Elettrico: A norma
Sanitari sospesi
Doccia
Persiane
Nelle vicinanze
Servizi e infrastrutture della zona
Ubicazione immobile
Video immobile
Studio Immobiliare Giannetto sas di Paolo Giannetto & C.
P.IVA: 01526660095
info@giannettoimmobiliare.it
0198429869
3496743593
https://wa.me/3496743593
P.IVA: 01526660095
info@giannettoimmobiliare.it
0198429869
3496743593
https://wa.me/3496743593
Contattaci
Ultimo aggiornamento 03/04/2026