Studio Immobiliare Giannetto sas di Paolo Giannetto & C.
349.67.43.593
Appartamento in vendita a Savona
Savona
Zona: San Michele
€ 173.000
#79 mq
#2
#1

Appartamento in vendita a Savona Savona

Zona: San Michele

Descrizione
Cod. F16-1514

RECENTE RISTRUTTURAZIONE
4 LOCALI

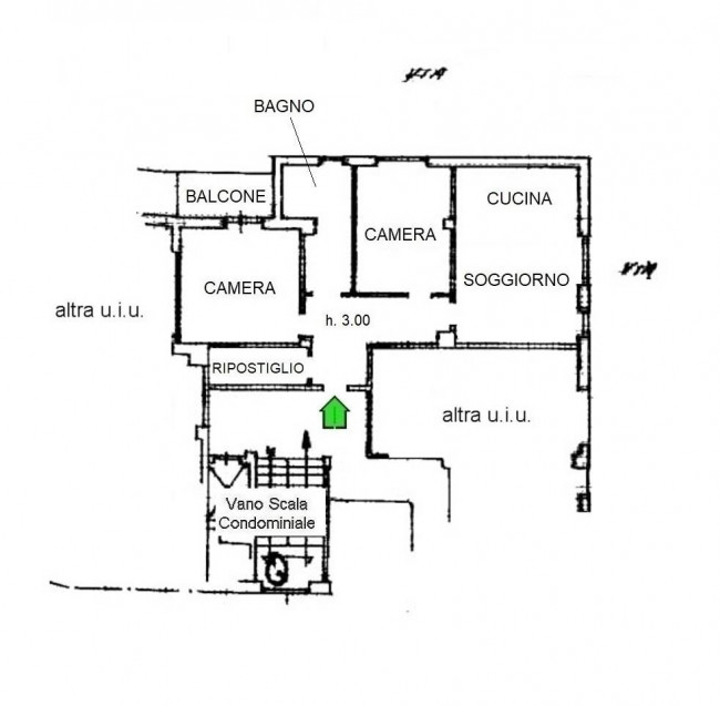
Giannetto Immobiliare propone al primo piano con ascensore ingresso a disimpegno e corridoio, ampia zona giorno con cucina a vista, due camere matrimoniali (una con balcone), ripostiglio, bagno finestrato con doccia

Termoautonomo con caldaia esterna a metano

PLANIMETRIA NELL'ULTIMA DELLE FOTO

Contattateci senza impegno per avere maggiori informazioni o per fissare una visita dell'immobile
019.84.29.869 - 349.67.43.593

Classe energetica: G
€ 173.000
Caratteristiche
Scopri le caratteristiche di questo immobile
Nelle vicinanze
Servizi e infrastrutture della zona
Ubicazione immobile
Video immobile
Ultimo aggiornamento 09/03/2026
×
Codice
Contratto
Scegli dove cercare
Tipologia - multiscelta
Prezzo


Totale mq


Locali minimi
Bagni minimi
Camere minime
Altre opzioni - multiscelta