- Ti trovi in:
- Home ›
- Immobili ›
- Savona ›
- Affitto ›
- Locale commerciale ›
- Locale commerciale in affitto a Savona
Locale commerciale in affitto a Savona Savona
Zona: Villapiana
Descrizione
Cod. F16-1505
1 VETRINA
Giannetto Immobiliare propone ampio Locale commerciale in zona di forte passaggio veicolare e pedonale
Presente la predisposizione per la realizzazione di un servizio igienico
Luce e acqua
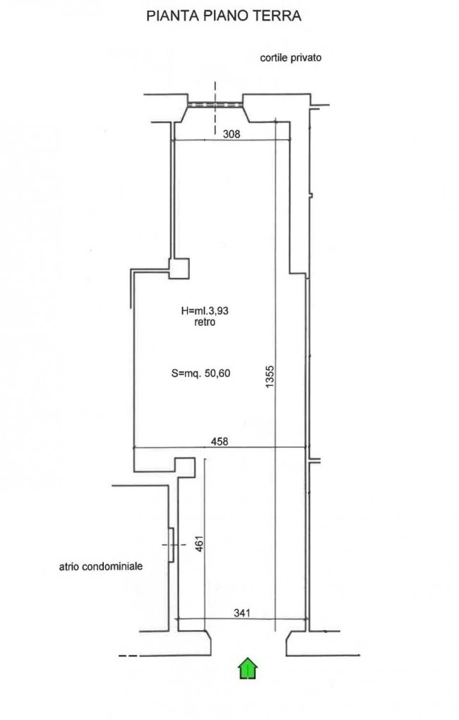
PLANIMETRIA NELL'ULTIMA DELLE FOTO
Contattateci senza impegno per avere maggiori informazioni o per fissare una visita dell'immobile
019.84.29.869 - 349.67.43.593
€ 550
Caratteristiche
Scopri le caratteristiche di questo immobile
Nelle vicinanze
Servizi e infrastrutture della zona
Ubicazione immobile
Studio Immobiliare Giannetto sas di Paolo Giannetto & C.
P.IVA: 01526660095
info@giannettoimmobiliare.it
0198429869
3496743593
https://wa.me/3496743593
P.IVA: 01526660095
info@giannettoimmobiliare.it
0198429869
3496743593
https://wa.me/3496743593
Contattaci
Ultimo aggiornamento 21/05/2025